一宮ショールーム
一宮市スケルトンリフォーム①

皆様こんにちは!
マニカホーム一宮ショールームです。
今回ご紹介する工事はスケルトンリフォームになります。
工事内容が盛りだくさんな為、数回に分けてブログ更新をいたします。
築年数:48年 木造建築 未来へつなぐリノベーション
祖母、母、子2人の2世帯でお住まいのT様
ご自宅は築48年となり老朽化が進んでいました。将来を見据えたとき、
お子様2人の代まで安心して暮らせる家にしたいとリノベーションを考えられたそうです。
T様が最もご不便に感じていたことは、部屋数の不足と駐車スペースが足りないことだったため、
それらを改善するための増改築工事をご希望でした。
また、耐震補強や断熱といった住宅性能の部分の改善も必要であったため、壁や床、天井を解体し骨組みだけを残す
スケルトン工事を行う大規模なリフォームとなりました。
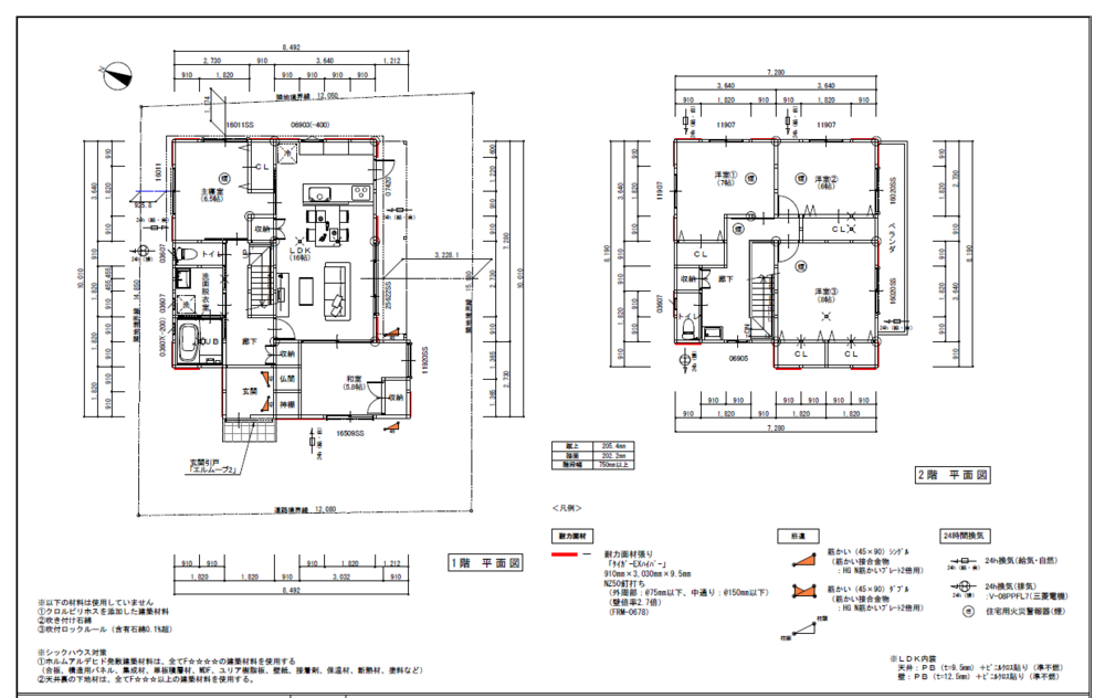
既設平面図

改装後平面図

内観パース


今回は打合せに使用した図面と内観パースのご紹介でした。
次回は工事中のご紹介を行いますのでお楽しみにー!!
お困りごとはマニカホーム一宮ショールームに。
ご来店お待ちしております。
