
Reform Story
リフォーム ストーリー
約1年前、浴室暖房の異音やお風呂の汚れが落ちにくいことにお困りで、ご相談いただいていたO様。
しかしご家庭の事情により一時的にリフォームを中断されていました。
その後の生活の中でキッチンなどにも不具合が生じてきたことや、お子さまの独立をきっかけに、あらためてリフォームをご検討されることとなりました。
また、偶然ご近所の方がマニカホームでリフォームをされており、その評判をお聞きになったことから、「もう一度マニカホームに相談してみよう」とお電話をくださいました。
さらに、複数社でお見積りを取られた中で、価格面での安心感に加え、愛犬が担当の太田・深谷になついたことも後押しとなり、最終的に弊社をお選びいただきました。
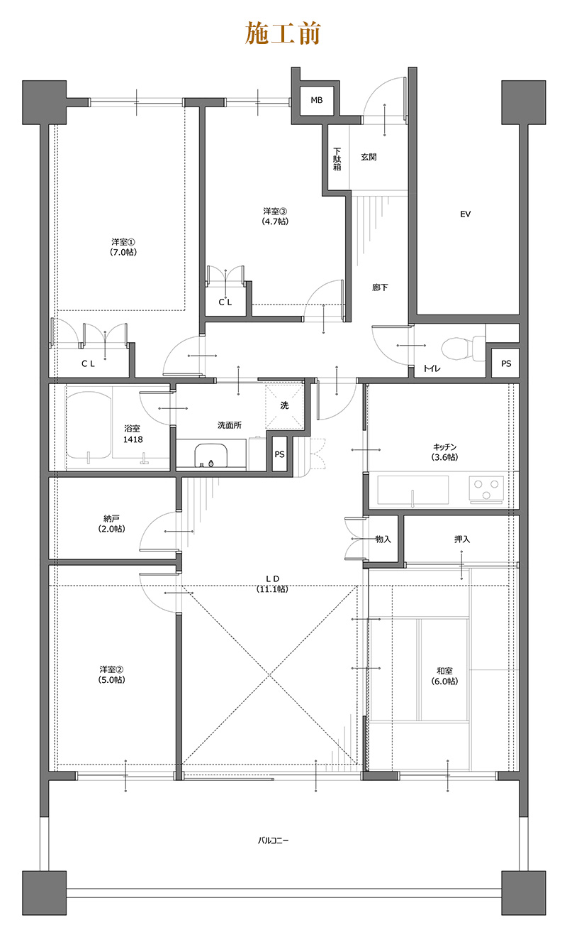
LDK+和室
食洗機の故障をきっかけに、キッチンを一新されることとなったO様ご夫婦。
独立していたキッチンは、奥様にとってやや閉ざされた印象があったそうです。
せっかくリフォームをするなら、その閉鎖的な空間をなくし、「より開放的な住まいにしたい」という想いから計画がスタートしました。
LDK全体を広く感じられるよう、和室もLDKの一部として活用できる間取りへと変更しています。

さらに、長年大切に使われてきた思い出のダイニングテーブルと椅子を置けるよう、十分なスペースを確保しました。


リビングではよりくつろげる空間を目指し、テレビを壁掛けにし、背面の下地にもこだわっています。O様からも「かっこよく仕上がった」とのお言葉をいただきました。



キッチン裏の収納を解体した際には、点検口が出てくるという想定外の出来事もありました。
点検口は設置が必要だったためO様にご説明し、段差を活かしたデザインとすることで、空間になじむよう工夫しています。工事中の課題にもひとつひとつ対応しながら進めました。

キッチン本体は、全体の施工費とのバランスを考慮し、コストパフォーマンスに優れたラクエラを採用しています。
キッチンパネルはマグネット対応とし、使い勝手にも配慮しました。


また、キッチンのニッチは配管スペースを有効活用して設けるなど、細部まで工夫を凝らしています。
キッチン横の壁面もマグネット仕様とすることで、キッチンペーパーやレシピメモなどを手軽に固定できるようにしました。


カップボードはお部屋の雰囲気に合わせてカグタスを採用しています。

レンジフードは清掃性の高いタイプ、水栓はLIXILのナビッシュを取り入れました。

仕様についてはSNSで多くの事例を研究され、デザインにこだわりのあるご友人にも相談されたとのことです。
理想が広がる中で悩まれる場面もあったそうですが、その分、納得のいく仕上がりとなりました。
ご夫婦の想いとこだわりが詰まった、開放的で心地よいLDK空間の完成です。
浴室・洗面・トイレ
浴室暖房乾燥機の故障をきっかけに、浴室も全体的に取り替えたいと考えられました。
以前から掃除のしにくさを感じていたとのことで、ショールームへ足を運ばれました。担当の太田がご案内しながら実際に設備を体験していただき、検討を重ねました。
その中で浴槽を広くするご提案をさせていただき、横幅にゆとりのあるワイド浴槽をお選びいただいています。
実際に入ってみると広さを実感でき、ご家族にもご好評いただきました。
その後、TOTOのショールームにも足を運び、浴室と洗面の仕様を決定されました。
太田のアドバイスも参考にしていただきながら、使いやすさやお手入れのしやすさも考え、納得のいく設備選びとなりました。


洗面所では、洗面台の鏡を一面鏡から収納付きの三面鏡へ変更し、収納力を向上させています。
設備も従来よりグレードの高いものへ交換し、機能性と使い勝手の向上を図りました。


また、既存の棚を撤去して生まれたスペースには、室内干し用のホスクリーンを設置し、実用性も高めています。

トイレは「内装をきれいにしたい」というご要望でしたが、この機会に設備も一新しました。
明るくお洒落な空間へと生まれ変わっています。


玄関・土間収納
もともと2畳の納戸がありましたが、キャンプ用品などの大きな荷物を収納するには手狭に感じられていました。
そこで、居室の一部を活用して収納を増やしたいというご要望をいただきました。
お客様のご要望をもとに、担当の深谷・太田より、玄関横に土間収納を設けるプランをご提案しています。
キャンプ用品などは納戸よりも玄関付近に収納することで出し入れがしやすくなり、動線の改善にもつながりました。

玄関には、スリッパをすっきり収納できるスリッパニッチも設置しています。

また、土間収納は窓側を壁にする計画であったため、暗さを軽減する工夫として採光と換気を確保する開口枠を3か所設けました。
光を取り込みながら風も通る、快適な空間となっています。



収納スペースが増えたことで多くの荷物をすっきり収められるようになり、風通しの良さも相まって、使い勝手の良い土間収納に仕上がりました。
まとめ
O様邸では、浴室・キッチン・トイレといった水まわり設備の一新に加え、LDKの間取り変更や土間収納の新設など、住まい全体を見直すリフォームを行いました。
それぞれの空間で使いやすさやお手入れのしやすさに配慮しながら、ご家族のライフスタイルに合わせた住まいづくりを実現しています。
特に、玄関横に設けた土間収納による収納力の向上や、風の通り道を意識した間取り計画については、O様にも大変ご満足いただいております。
細部までこだわりを反映し、ご家族が快適に過ごせる住まいへと生まれ変わりました。


















