
Reform Story
リフォーム ストーリー
はじめにご相談をいただいてから、約3年間のお付き合いになりました。
O様は住まい全体のリフォームをご検討でしたが、そのための片付けがご負担で、うまく進められるか不安をお持ちでした。
住宅設備の老朽化に伴う工事を最優先で、まずどこから進めるかを伺い、お仕事のご予定も考慮して、在宅のまま進められるよう工程(順番)をご提案しました。
特にリビングについては、3年前にはイメージが固まっていなかったこともあり、じっくり考えていただいたうえで今回の工事に至りました。
1年目
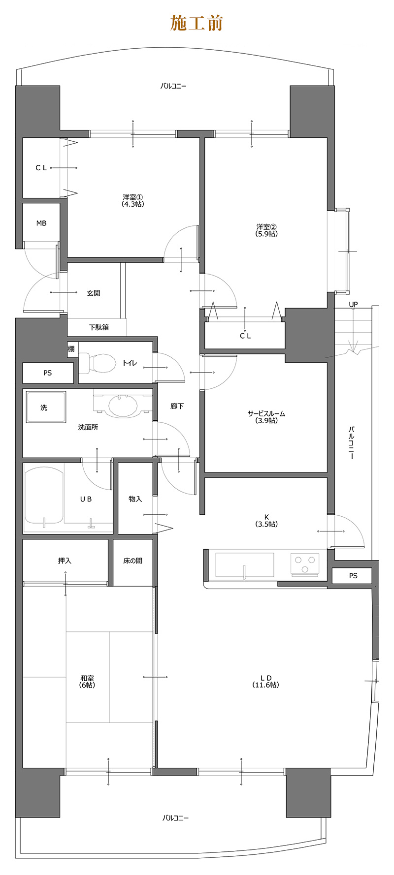
【お風呂・洗面所】
O様は、老朽化や汚れが気になる箇所の取り替えを検討されていました。
お風呂はナチュラルテイストのパネルをお選びいただき、明るく清潔感のある空間に。また掃除のしやすさも向上しました。
洗面台にはTOTOのオクターブを採用。洗面所の広さはそのままに、入口の扉を外すご要望にお応えし、カーテンで仕切れるようにしました。
さらに、洗濯機の向きを変更することで、洗濯動線も格段にスムーズになり、日々の家事がより快適になっています。


【トイレ】
O様からは、トイレに手洗い場を新設したいとのご要望をいただきました。
奥にある手洗いでは使い勝手が悪く、また浅い手洗いのため水はねが気になっていたとのことです。
そこで手洗い場を新設し、さらにトイレの扉を引き戸に変更することで、これまでのお悩みを解消しました。

2年目
【キッチン】
新しいキッチンを選ぶ際、流し台下をオープンスペースにしたいとのご希望がありました。
オープンスペースにゴミ箱を置くことで、限られたスペースを有効に使いながら、すっきりとしたキッチンを実現できます。
さらに、背面の壁を取り壊してキッチン空間自体を広げ、カップボードを設置しました。
色はご希望の緑に合わせて、「トクラス Bb」を採用。
暗さを解消するために、開口部を広く取り、照明もダウンライトに変更したことで、明るく快適な空間に生まれ変わりました。
入口の扉も開き戸から引き戸に交換し、使い勝手を向上させています。



【ウォークインクローゼット・和室】
O様は収納スペースにもお困りでした。
そこで、今回和室の押入れ・床の間を合わせて約1.5畳のウォークインクローゼットを新設。
廊下側と和室側の2方向から出入りできる造りにすることで、生活動線がより快適になるよう工夫しました。
扉も引き戸に変更し、廊下側での開閉時に狭さを感じることがなくなりました。
収納量が大幅に増えたことで、O様からも「とても便利になった」とご好評をいただいています。

3年目
【LDK(内装)】
リビングの過ごし方についてお話を伺った際、O様から「畳を取り入れ、床に座って食事をしたい」というご希望がありました。
パソコン作業スペースの使い勝手にも配慮し、リビング中央部分に畳を設置するプランをご提案しました。
畳には汚れても掃除がしやすい「セキスイ畳 MIGUSA 樹脂畳」を採用。
フローリング部分には、滑りにくく歩きやすい「イクタ プリオス 介護とペット」をご提案し、安全性と快適性を両立させています。



【玄関ホール】
「玄関ホールを広くして明るくしたい」「上がり框をRの曲線にしたい」とのご相談をいただきました。
広さを確保するため、玄関横の洋室の壁と扉を取り壊し、シューズボックスを洋室側へ移動。
以前洋室だったスペースはフリースペースとして活用できるほか、玄関収納としても便利に使えるようになりました。
明るさを取り込むための窓には内窓を設置し、遮熱・防音対策も行っています。



上がり框を曲線にしたことで、玄関に入った時に柔らかな印象を感じる玄関ホールになりました。


【洋室】
玄関に入ると正面に扉があり、使い勝手に課題があったため、この機会に扉の位置を変更しました。
併せてクロスも貼り替え、「サンゲツ ドレープクロス」の中からO様お気に入りの色をお選びいただきました。


まとめ
約3年間かけて描いてこられた理想の住まいが形になり、O様に大変喜んでいただけました。
1年目、2年目には「次はここをこうしたい」とノートにイメージやご要望をまとめてくださり、次の工事を楽しみにされていたことが印象的でした。
リフォーム全体を一度に行うには、想像以上の準備や時間が必要になります。
その点、当初「できるかな」「不安だな」と感じておられたO様には、1年ごとに時間に余裕を持ちながら段階的に進める方法が合っていたのではないかと思います。
ご不安な点を一つひとつご提案で解消しながら進めたことで、結果的に3年かけてご納得いただけるリフォームを実現することができました。
















