
Reform Story
リフォーム ストーリー
M様は、現在空き家となっているご実家を「このままではもったいない」と感じておられました。
当初はツリーハウスを作ろうと、自由設計を得意とするグループ会社「ニッカのいえ」にご相談されましたが、安全面などの理由から実現は難しいとのことでした。
そこで、グループ会社である「マニカホーム」を紹介され、「それなら内装をリフォームして実家を活用しよう」と弊社にご来店くださいました。
プランニング
当初、M様はご実家の内装工事を検討されていましたが、実際に住む予定はなく、「別荘のように時々訪れる場所にできたら」とお考えでした。
しかし、打ち合わせを重ねる中で、担当の太田と深谷から「せっかくのご実家ですし、住む形で全体を改装してみてはどうでしょうか」とご提案。
その言葉をきっかけに、「住むならとことんこだわりたい」という想いが芽生え、家の中全体をリノベーションする方向へと進むことになりました。

M様からは、「両親の面影や思い入れのあるものは残しつつ、子どもたちが帰ってきたときに集まりやすい家にしたい」というご要望をいただきました。
そこで、こだわりたいポイントをすべてお伺いした上で、M様に最適な間取りを一緒に考えていくことにしました。
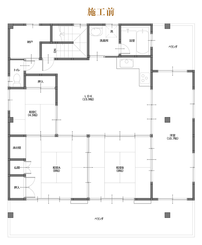
LDK
以前からあまり使用していなかった東側の洋室について、M様は有効活用を検討されていました。
そこで、東側の洋室の一部をLDKに取り込むプランをご提案。結果として、より広く開放的なLDKを実現することができました。

M様はこれまで対面キッチンを使われていました。そこで「使い慣れたスタイルが良いのではないか」と考え、L型キッチンを対面キッチンへ変更するプランをご提案しました。奥様からは「家族とコミュニケーションを取りながら家事ができる」と大変喜んでいただきました。
また、吊戸棚は空間に圧迫感を与えるため設置せず、開放的なデザインとすることでより快適にお使いいただけるキッチンになりました。


収納を増やしたいというご要望に応え、カップボードを新たに設置し、以前からお使いの食器棚も併用できるようにしました。
また、パントリーもご希望でしたので、キッチン横の動かせない鉄骨部分を活かして扉付きのパントリーを設置。使い勝手と収納力を両立させました。


照明については、M様がシーリングライトからダウンライトへの変更を希望されていました。
しかしリビング中央に昇降階段があったため、階段の位置を移動することで、希望にお応えしました。

洗面・お風呂
夏場は蒸し暑く、冬場は極寒になる浴室。長らく使用していなかったこともあり、M様は「せっかく住むなら掃除のしやすい浴室にしたい」と希望されました。
ショールームで商品を選ばれる際、旦那様には譲れないこだわりがありました。それはジェットバスです。立ち仕事で疲れた足をゆったり伸ばしながら、ジェットバスでリラックスしたいとのことから、採用が決まりました。
また、奥様からは「残り湯を洗濯に使えるようにしたい」とのご要望もあり、残り湯機能を備えた浴室設備を導入しています。


洗面収納は、もともと観音開きの扉でしたが、使い勝手を重視してフルスライドタイプに変更しました。


トイレ
もともとのトイレは一般的な広さより少し狭く、使い勝手にも課題がありました。
そこで、納戸だったスペースにトイレを移設し、より広く快適な空間を確保しました。

腰に負担がかからないよう、便座は自動開閉タイプを採用。また、手洗いスペースをトイレ正面に移設し、洗面台の下台のみを取り付けました。
その結果、奥様からは「トイレは腰に負担がかからなくなりました。手洗いもとても快適に使えます」と大変喜んでいただけました。



和室・奥様・子ども部屋
仏間として使われていた和室について、M様は「8畳もの広さは不要」と感じておられました。
そこで、8畳の仏間を6畳に縮小し、余ったスペースを活用して3部屋に分けました。

また、思い出が詰まった旦那様のご実家ということもあり、「可能であれば木彫りの欄間を使いたい」とのご要望がありました。
既存の木材を再利用し、6畳の和室に趣のある欄間を取り入れることで、思い出を残したまま新しい空間に仕上げています。
M様からは、「残したいという要望があったものの、本当に叶うとは思っていませんでした。とても嬉しかったです」とお喜びの声をいただきました。


また、ご自宅が道路沿いにあることから車の騒音対策も課題でした。さらに、夏は暑く冬は寒いという気候条件も踏まえ、断熱性を高めるため寝室の窓には二重窓を採用しています。


旦那様のお部屋
もともと和室だった場所に、旦那様の個室を作ることになりました。
思い出が詰まったご実家ということもあり、「両親の思いも大切にした部屋にしたい」とご要望をいただきました。

そこで、東側の洋室の天井などに使用されていた木材を壁に活用するプランをご提案。
木材を壁に取り入れたことで、趣味のギターを掛けることもでき、両親の思い入れも残すことができました。
M様からは「懐かしさを残しつつ、個人の空間として快適に過ごせる部屋になり、とても満足です」とお喜びの声をいただきました。

まとめ
長年住み継がれてきた家の記憶を大切にしつつ、新たな暮らしにふさわしい空間へと生まれ変わった今回のリノベーション。
使い慣れた素材や愛着のある壁を再利用することで、思い出を住まいの一部として残すことができました。
今後も、この住まいがご家族の歴史とともに、やさしく時を刻み続けていくことを願っています。


















