
Reform Story
リフォーム ストーリー
数年前にお風呂、洗面所、トイレのリフォームを弊社にご依頼いただいたT様。
今回のリフォームは、少しずつ気になっていた箇所や不便さが増えたことがきっかけでした。カーペットのほつれ、キッチンの汚れ、窓の結露などを解消したいというご希望に加え、お子様の独立というライフステージの変化に合わせ、これからの生活をより快適に過ごせる居住空間にするための工事のご依頼をいただきました。
また、同じマンションでリフォームされたご友人宅をご覧になったことも、リフォームの後押しになったそうです。
お打ち合わせを重ねる中で、奥様と旦那様のご要望がそれぞれ明確になりました。
・キッチンを清潔でお手入れしやすいものにしたい
・リビングを明るく広々とした、ゆったりくつろげる空間にしたい
T様のご希望に応えられるよう、複数のプランを提案し、ご相談を重ねながらリフォームを進めていきました。
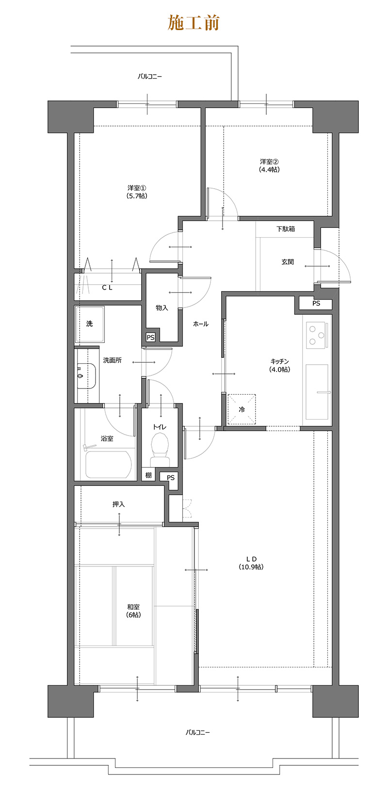
リビング
リビングが狭く、お気に入りのリクライニングチェアで過ごすには少し窮屈さを感じていらっしゃったご主人様。
「リビングをゆったりくつろげる空間にしたい」とのご相談をいただきました。
もともとリビングの隣に和室が1部屋あり、その和室を取り込むことで、リビング空間を広げるプランをご提案しました。

和室にあった押し入れはクローゼットに変更し、扉も新しく取り替えました。
扉の色味は他の建具に合わせることで、お部屋全体に統一感を持たせています。
照明はダウンライトに変更。配置も工夫することで、これまでより明るく快適な空間になりました。
床にはサンゲツのカーペット「サンセサミ SER-1211」を採用。
静電気の発生を抑え、ほこりの付着を防ぐほか、防ダニ・防汚・防炎・抗菌など多彩な機能を備えています。
耐久性にも優れており、一般家庭はもちろん、ホテル客室やレストランでも使用されている歩行量に強いカーペットです。

リビングは約7畳広くなり、ゆったりとした開放的な空間に生まれ変わりました。 これにより、ご主人様の「ゆったりくつろげるリビングにしたい」というご要望を叶えることができました。


ダイニングキッチン
打ち合わせを始めた当初、奥様はキッチンを対面式にしたいとのご希望でした。
しかし、プランを検討する中で、対面式にするとダイニングが狭くなってしまうという課題がありました。
さらにキッチン内に十分な収納スペースがなく、収納を増やしたいとのご要望もいただいていました。
そこでダイニングの広さを確保するため、キッチンは壁付けのままにしました。元は2ヶ所あったキッチン室の扉を1ヶ所塞ぎ、塞いだ壁にカップボードを設置し、収納スペースを確保しました。
加えてダイニング側の壁を取り払うことで、以前よりもキッチン室全体に開放感を持たせています。



台所の汚れが気になるとおっしゃっていた奥様。
掃除のしやすさや、今後のお手入れのしやすさは、キッチン選びの重要なポイントでした。
トクラスのショールームに何度か足を運ばれた結果、「つぎめのない一体型シンク」と「ハイバックカウンター」を特に気に入られ、キッチンはトクラスのコラージアを採用されました。

ハイバックカウンターにはハンガーアイテムを取り付け、調味料などをカウンターに置かずに収納できるようにすることで、さらに掃除がしやすいキッチンに。
また、キッチンパネルにはマグネットパネルを採用し、用途に応じて必要なものを「浮かせられる」仕様にしています。
洋室
洋室の2部屋は、壁と天井のクロスを貼り替え、カーペットの張替えも行いました。
また、窓の結露にお困りだったため、内窓の設置をご提案し、快適に過ごせる空間になるよう配慮しました。


まとめ
「以前の工事と比べ、リビングを含めた今回のリフォームは大変な部分もありましたが、仕事帰りに日々工事の進捗を確認しながら、住みながらのリフォームを楽しむことができました。確認したいこともその都度確認できました」とT様。
細かなご要望にも前向きに対応した点を評価いただき、「今回もマニカホームに依頼して良かった」との嬉しいお言葉もいただきました。
ご夫婦それぞれのご希望が形になった今回のリフォーム。
リビングで過ごすご主人様も、キッチンで過ごす奥様も、これからの時間をより快適に楽しんでいただけることを、大変光栄に思っております。

















