
Reform Story
リフォーム ストーリー
2世帯住宅にお住まいのO様ご夫妻。今後を見据え、この先30年住める家へとご自宅のリフォームを検討し始めました。
以前ご両親がお住まいだった1階がそのままの状態だったため、これからはO様ご夫妻が1階で暮らせるように改装したいとお考えでした。
娘様からの助言も、一歩を踏み出すきっかけとなったそうです。
奥様と娘様でリフォーム会社を探していたところ、マニカホームを見つけ、ご相談いただきました。
LDK・和室
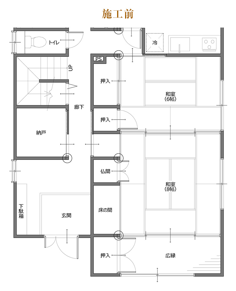
キッチンのある居間は北側にあり独立していたため、南側の和室をLDKに作り変えることにしました。
思い切って和室の壁を取り払い、廊下とつなげることで、ひとつながりの広々とした21.5帖のLDKを実現できました。





キッチンはパナソニックのラクシーナです。
住まい全体をグレー系で統一したいというご希望があったO様は、キッチン選びの際にもインテリアに馴染むカラーを探していらっしゃいました。
パナソニックのラクシーナの面材の中にイメージにぴったりのものがあり、採用されました。
さらに、3つ横並びで使える「トリプルワイドIH」に魅力を感じたことも、採用の決め手となったそうです。

キッチンは壁付けにし、向かい合うように作業台を設置しました。
リビングからキッチンが見えないようにしたいというご要望に応え、作業台はキッチンより高くなるよう特注のカウンターを取り付けました。これにより、調理中に手元がごちゃついても、リビングからは見えないよう配慮されています。


リビング側のニッチには観葉植物を飾るなど、O様のこだわりが感じられるオシャレなカウンターとなりました。
また、家事動線を考え、作業台の横にはオーダーメイドの2人がけダイニングテーブルを設置しています。


仏壇があるため和室は残したいとのご希望から、LDKの一角に1坪ほどの小さな和室を設けました。
また、階段下のデッドスペースを有効活用し、仏壇のサイズに合わせて収納を造作することで、スッキリと収められるよう工夫しています。

リビングの床にはフローリングではなく、お部屋全体のイメージに合うグレーのフロアタイルを採用しました。
愛犬の足への負担が少なく、溝がないため隙間に汚れが入り込むこともありません。
さらに、フローリングより価格を抑えられるため、金銭面での負担を軽減できるメリットもあります。


玄関フロアの横には、LIXILのガラス建具「ラフィス」を取り付けました。
透明感のあるガラスは明るさや開放感を演出し、リビングに抜け感をもたらすことで、美しくオシャレに見える効果があります。

水廻り
【浴室・ランドリースペース】
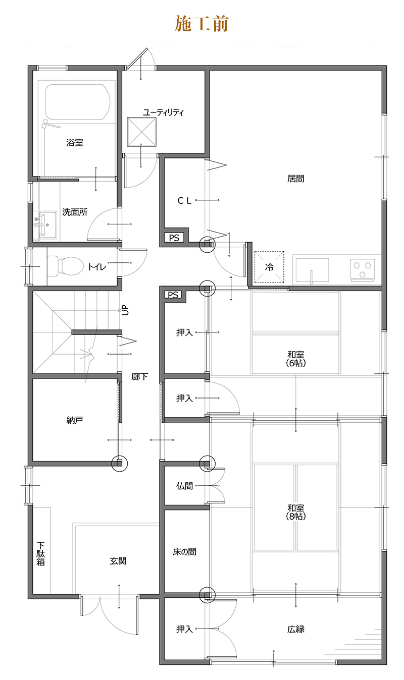
水廻りは、使い勝手が良くなるよう間取りを変更しました。
面積の大きかった浴室は、あえて小さいサイズへ取り替え、その分を必要なスペースに充てることにしました。
脱衣所に置いていた洗面台は独立させ、個別の洗面所を設けています。
脱衣所は、以前洗濯機を置いていたユーティリティスペースを活用し、ランドリースペースを兼ねた機能的な空間となりました。




ランドリースペースは、ご家族用の洗濯機とご主人様の仕事着専用の洗濯機を並べて置ける、ゆとりある空間です。
ハンガーパイプを取り付け、洗濯後にそのまま室内干しができるように。
さらに、そのまま畳んで収納まで、一連の流れをスムーズに行うことができます。
あらかじめ決めておいた収納ケースのサイズに合わせてオーダーメイドでカウンターを造作し、その高さに合わせてぴったりの位置へコンセントを配置しました。


【洗面所】
洗面台の壁にはお掃除がしやすいよう、水はね用のキッチンパネルを貼りました。
洗面台横の収納は天板と高さを合わせて棚を設置し、下にゴミ箱を置くことができます。
コンセントの位置が洗面台の高さにぴったり合うよう、洗面台を取り付けた後に位置を確認しながら微調整して取り付けました。
細かな部分にもO様のこだわりが詰め込まれています。




【トイレ】
トイレは窓からの日光が明るすぎることがお悩みだったため、間仕切りを設置することで過度な光を遮断し、心地よい明るさを取り入れられるようになりました。
また、背面に収納スペースが生まれ、生活感を感じさせないスッキリと清潔な空間へと変わりました。


洋室
ご夫妻で1部屋ずつ、別々の寝室を設けました。
奥様の寝室にはWICを新設し、家全体のイメージであるグレーの色味で統一した、落ち着きのある空間に仕上がりました。



こだわりのオーダーメイド
O様ご夫妻のこだわりが、住まい全体に詰め込まれています。






玄関のシューズクロークは可動棚で高さを調節でき、傘をかけられるバーも取り付けました。


照明器具
インテリアに合わせてお選びになった、スタイリッシュな照明器具です。






まとめ
リフォームにあたり、たくさんの情報を調べ、理想のイメージを固めてくださっていました。
そのうえで、カウンターの高さや寸法、コンセントの位置など、打ち合わせから工事中まで細部にまで気を配り、ご希望通りの仕様になるよう、一緒に作り上げていきました。
完成したご自宅は、統一されたカラーやオーダーメイド家具、照明器具など、目を引くアクセントがたくさん詰まった素敵なお住まいとなりました。
2階から1階へと生活拠点を移す、将来を見据えたリフォーム工事に携わらせていただき、大変嬉しく感じております。
これからの生活が、より楽しい毎日となりますよう願っております。


















