
Reform Story
リフォーム ストーリー
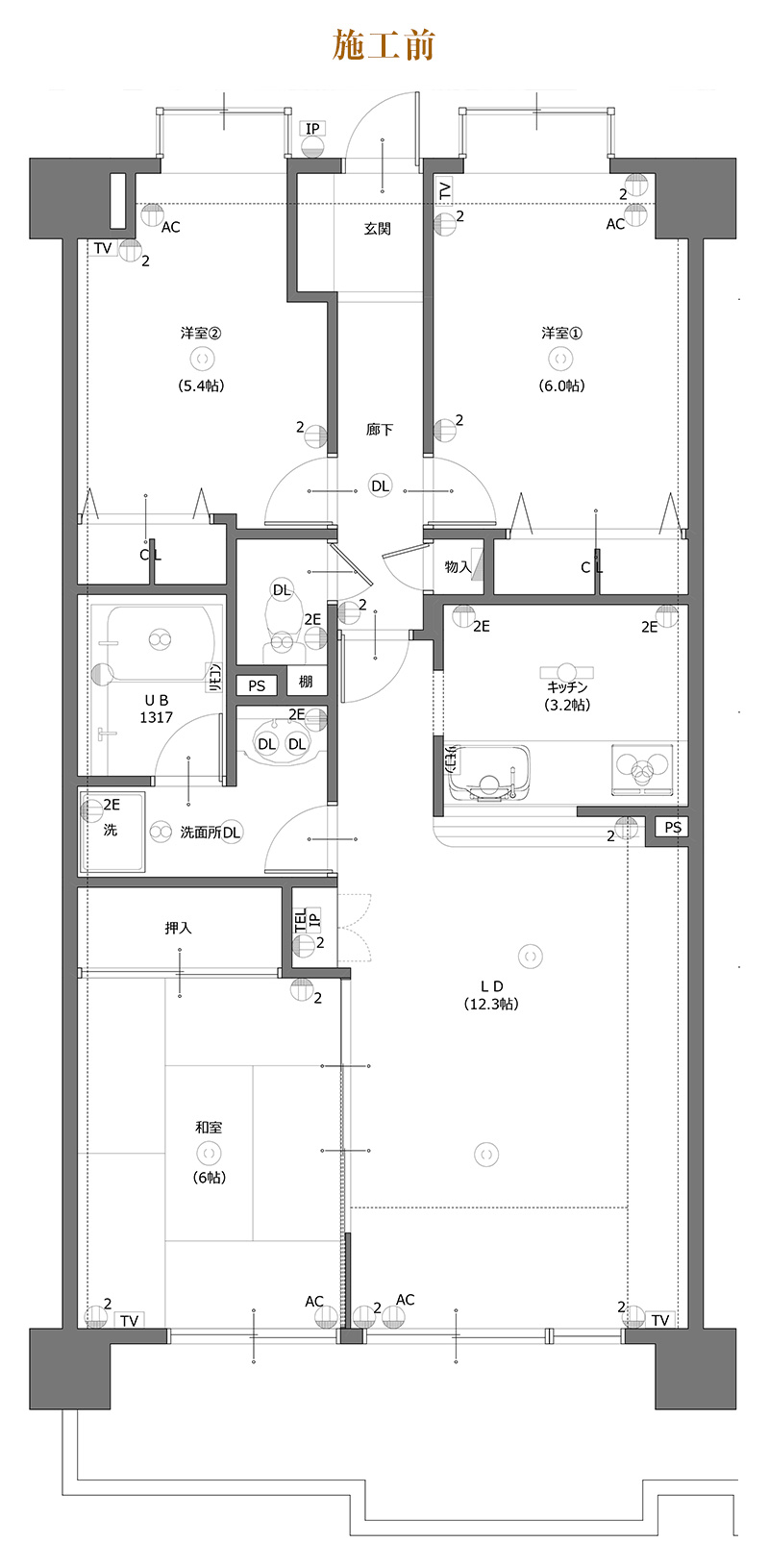
共働きのご夫婦と小学生のお子さまの3人家族をイメージした、3LDKのファミリー向け中古物件をリノベーション。
日本の落ち着いたナチュラルテイストと、あたたかみのある北欧テイストを融合させた"ジャパンディスタイル"を取り入れました。
お子さまの成長やご家族のライフスタイルの変化に柔軟に対応できる、将来を見据えた住まいです。
LDK
6帖の和室をリビングダイニングとつなげて、18畳の広々とした空間にリノベーションしました。
リビングと隣接する、もともと和室だった洋室は引き戸で仕切られており、普段は開けて開放感のあるLDKとして使用できます。
お子さまが成長して自室が必要になった際には、三枚引き戸で仕切られているため、個室として独立させることも可能です。
三枚引き戸や収納の扉は白で統一し、三枚引き戸は天井までの高さにすることで、すべて開けたときも圧迫感が出ないよう配慮しました。


キッチンは、吊戸棚と壁を撤去して外からの光が取り込める明るい空間にしました。
また、忙しい朝や帰宅後の家族の時間も、吊戸棚がないことでコミュニケーションが取りやすくなります。
キッチンには家事がラクになる設備を揃えており、食洗機・浄水器・レンジフードは掃除のしやすいものを選びました。


リビングでは、テレビ台の壁にちょっとした工夫を施しました。
既製品の格子を使うと費用がかかるため、床見切り材を活用して格子風のデザインに仕上げています。
また、梁にはアクセントクロスを使用し、空間の雰囲気に合わせました。


電話台下の収納扉には、キッチンカウンター材と同じ集成材を使用し、玄関収納の上に設置しました。
キッチンカウンターの集成材を取り入れたことで、LDK全体に統一感が生まれています。

洗面・浴室
浴室は、コストを抑えつつ見た目にもこだわりたかったため、Panasonicの「オフローラ」を採用しました。
壁には磁石で必要なものを取り付けられるため、あえてカウンターとミラーを設置せず、自分好みにアレンジできるようにしています。
また、家事負担を減らせるように、浴室暖房乾燥機も備えています。

洗面には、マニカホームのオリジナル商品「KAJIE」を採用しました。
少し狭かった洗面所も造作洗面にすることで圧迫感が解消され、ゆとりのある洗面空間に仕上げています。

トイレ
今まで白だったクロスをグレーに変更し、照明もペンダントライトにすることで、明るすぎず落ち着ける空間にしました。
トイレの棚には集成材(セブン工業 アカシヤ集成材・グローオーク)を使用しており、各部屋の棚と合わせることで統一感を出しています。


まとめ
共働きのご夫婦とお子さまの将来を見据えた3LDKの中古物件リノベーション。広々としたLDKでは家族みんなが集まり、食事や会話を楽しめる空間を実現しました。
造作洗面や機能的なキッチン、統一感のある集成材使いで、家事や日常の動線もスムーズに。
北欧とナチュラルを融合させたジャパンディスタイルの落ち着いた空間は、明るく居心地が良く、家族の成長やライフスタイルの変化にも柔軟に対応できます。














