Reform Story
リフォーム ストーリー
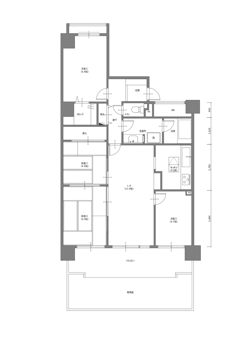
専用庭で楽しむ、わが家だけの贅沢。
愛知県尾張旭市東栄町にある「シーアイマンション三郷」は、そんな“賢い選択”を叶えてくれる一邸。収納力とデザイン性を兼ね備えた空間は、毎日の暮らしをもっと心地よくしてくれます。
リビングダイニング ― 家族の気配が心地よく溶け込む場所
19.4帖の広々としたLDKは、この住まいの中心になる場所。
南向きの大きな窓から光がたっぷり入って、昼間は照明がいらないほど明るく、空気まで柔らかく感じられます。
ソファに腰掛けると、キッチンの方から聞こえる料理の音や、子どもが宿題をする気配が自然と混ざり合って、なんだか安心するんです。
広さに余裕があるから、家具の配置も自由自在。観葉植物を置いても、空間が窮屈にならないのが嬉しいところ。
「家族が自然と集まる場所」って、こういう空間のことを言うんだろうなと感じさせてくれるリビングダイニングです。
南向きの大きな窓から光がたっぷり入って、昼間は照明がいらないほど明るく、空気まで柔らかく感じられます。
ソファに腰掛けると、キッチンの方から聞こえる料理の音や、子どもが宿題をする気配が自然と混ざり合って、なんだか安心するんです。
広さに余裕があるから、家具の配置も自由自在。観葉植物を置いても、空間が窮屈にならないのが嬉しいところ。
「家族が自然と集まる場所」って、こういう空間のことを言うんだろうなと感じさせてくれるリビングダイニングです。
ワークスペース ― わたし時間がそっと整う場所
窓辺に設けられた木製カウンターデスクは、自然光がやさしく差し込む心地よい空間。
コンパクトなのに奥行きがあり、仕事にも趣味にもぴったりです。
お気に入りの雑貨や本を並べれば、自分だけの小さな“整う場所”に。
グリーンやドライフラワーがそっと添えられ、気持ちまでふわっと軽くなります。
忙しい日々の中で、静かに自分のペースを取り戻せるワークスペースです。
コンパクトなのに奥行きがあり、仕事にも趣味にもぴったりです。
お気に入りの雑貨や本を並べれば、自分だけの小さな“整う場所”に。
グリーンやドライフラワーがそっと添えられ、気持ちまでふわっと軽くなります。
忙しい日々の中で、静かに自分のペースを取り戻せるワークスペースです。
キッチン ― “整う”と“ときめく”が両立する場所
キッチンに立った瞬間、まず目に入るのは落ち着いたグレーのキャビネット。派手すぎず、でもしっかりと存在感のある色味が、空間全体を上品にまとめてくれます。
カウンターキッチンなので、料理をしながらリビングにいる家族の様子が自然と目に入るのも嬉しいところ。
背面にはカップボードを置けば、食器や調理器具を“見せずにしまえる”のが魅力です。
ごちゃつきがちなキッチン周りがすっきり整うと、料理の時間がちょっと楽しくなるもの。
ペンダントライトの柔らかな光が、夜のキッチンをやさしく照らしてくれます。
カウンターキッチンなので、料理をしながらリビングにいる家族の様子が自然と目に入るのも嬉しいところ。
背面にはカップボードを置けば、食器や調理器具を“見せずにしまえる”のが魅力です。
ごちゃつきがちなキッチン周りがすっきり整うと、料理の時間がちょっと楽しくなるもの。
ペンダントライトの柔らかな光が、夜のキッチンをやさしく照らしてくれます。
洗面所 、浴室― 朝の支度が心地よくなるデザイン
洗面所は、木製カウンターと黒の水栓が印象的な、まるでホテルのような雰囲気。
鏡に映る自分の表情まで、なんだか少しシャキッと見える気がします。
収納棚がしっかり確保されているので、化粧品やドライヤー、タオル類もすっきり収まります。
“生活感を隠しながら使いやすい”という絶妙なバランスが、忙しい朝の身支度をスムーズにしてくれます。
木の温もりと黒のアクセントが、毎日のルーティンにちょっとした特別感を添えてくれる空間です。
鏡に映る自分の表情まで、なんだか少しシャキッと見える気がします。
収納棚がしっかり確保されているので、化粧品やドライヤー、タオル類もすっきり収まります。
“生活感を隠しながら使いやすい”という絶妙なバランスが、忙しい朝の身支度をスムーズにしてくれます。
木の温もりと黒のアクセントが、毎日のルーティンにちょっとした特別感を添えてくれる空間です。
トイレ ― 小さな空間だからこそ、心地よさを大切に
トイレは最新型の洗浄機能付きで、使い心地も清潔感も申し分なし。
壁面の色味や収納棚のデザインがやさしく、落ち着いた雰囲気をつくっています。
トイレットペーパーや掃除用品をしまえる収納があるので、見た目はいつもすっきり。
“ただのトイレ”ではなく、ちょっと気持ちが整うような、そんな小さな癒しの空間になっています。
壁面の色味や収納棚のデザインがやさしく、落ち着いた雰囲気をつくっています。
トイレットペーパーや掃除用品をしまえる収納があるので、見た目はいつもすっきり。
“ただのトイレ”ではなく、ちょっと気持ちが整うような、そんな小さな癒しの空間になっています。
洋室①(北側) ― 一日の終わりにほっとできる主寝室
洋室1は、落ち着いた雰囲気が心地よい主寝室にぴったりの空間。
ベッドを置いてもゆとりがあり、動線がスムーズなので、朝の支度もストレスなく進みます。
大型クロークが備え付けられているので、衣類やバッグをまとめて収納でき、部屋がいつもすっきり整います。
枕棚+パイプの組み合わせは、季節ごとの衣替えもラクにしてくれる頼もしい存在。
静かで落ち着いた空気が流れるこの部屋は、忙しい毎日の中で“自分を取り戻す場所”になってくれそうです。
ベッドを置いてもゆとりがあり、動線がスムーズなので、朝の支度もストレスなく進みます。
大型クロークが備え付けられているので、衣類やバッグをまとめて収納でき、部屋がいつもすっきり整います。
枕棚+パイプの組み合わせは、季節ごとの衣替えもラクにしてくれる頼もしい存在。
静かで落ち着いた空気が流れるこの部屋は、忙しい毎日の中で“自分を取り戻す場所”になってくれそうです。
洋室②(中部屋) ― 小さな空間に広がる“わたし時間”
4.5帖の洋室2は、コンパクトながら使い方の幅が広いのが魅力。
本や雑貨を並べるだけで、自分だけの小さなギャラリーのような空間に変わります。
デスクを置けば、在宅ワークや読書、趣味の作業にもぴったり。
小さな部屋って、なぜか集中できたり、落ち着いたりするんですよね。
“こもり感”が心地よくて、気づけば長居してしまいそうな、そんな愛着の湧くお部屋です。
本や雑貨を並べるだけで、自分だけの小さなギャラリーのような空間に変わります。
デスクを置けば、在宅ワークや読書、趣味の作業にもぴったり。
小さな部屋って、なぜか集中できたり、落ち着いたりするんですよね。
“こもり感”が心地よくて、気づけば長居してしまいそうな、そんな愛着の湧くお部屋です。
洋室③(南側) ― ゲストにも、自分にも優しい多用途ルーム
洋室3は、6帖というちょうどいい広さで、使い方を選ばない万能な空間。
バルコニーに面しているので、自然光がふわっと入ってきて、部屋全体が明るく感じられます。
ゲストルームとしても、セカンドリビングとしても、暮らしに合わせて柔軟に変化してくれる頼もしい一部屋です。
バルコニーに面しているので、自然光がふわっと入ってきて、部屋全体が明るく感じられます。
ゲストルームとしても、セカンドリビングとしても、暮らしに合わせて柔軟に変化してくれる頼もしい一部屋です。
玄関 ― 帰ってきた瞬間、気持ちがふっとゆるむ場所
玄関を開けた瞬間、まず感じるのは“すっきり整った印象”。
収納がしっかり確保されているので、靴や日用品が散らかりにくく、いつでも気持ちよく迎えてくれます。
廊下に続くラインがまっすぐで、視界が開けているから、帰宅した瞬間にふっと肩の力が抜けるような安心感があります。
家の第一印象を決める玄関が整っていると、毎日の暮らしがちょっと丁寧になる気がします。
収納がしっかり確保されているので、靴や日用品が散らかりにくく、いつでも気持ちよく迎えてくれます。
廊下に続くラインがまっすぐで、視界が開けているから、帰宅した瞬間にふっと肩の力が抜けるような安心感があります。
家の第一印象を決める玄関が整っていると、毎日の暮らしがちょっと丁寧になる気がします。
専用庭 ― わが家だけの小さなアウトドアリビング
リビングから続く専用庭は、外の空気をすぐそばに感じられる心地よいスペース。
季節の花を育てたり、休日にコーヒーを楽しんだり、使い方は自由です。
子どもが遊んだり、ペットと過ごしたり、家族の時間が自然と広がります。
マンションでは珍しい“庭のある暮らし”が、毎日にちょっとした贅沢を添えてくれます。
外に出るたび、気持ちがふっと軽くなるような、そんな特別な場所です。
季節の花を育てたり、休日にコーヒーを楽しんだり、使い方は自由です。
子どもが遊んだり、ペットと過ごしたり、家族の時間が自然と広がります。
マンションでは珍しい“庭のある暮らし”が、毎日にちょっとした贅沢を添えてくれます。
外に出るたび、気持ちがふっと軽くなるような、そんな特別な場所です。
まとめ
収納力とデザイン性を兼ね備えたこの住まいは、新築よりもお得に、しかも新築以上に快適な暮らしを叶えてくれます。家族の時間をもっと豊かに、自分らしいライフスタイルを楽しむための理想の一邸です。









