Reform Story
リフォーム ストーリー
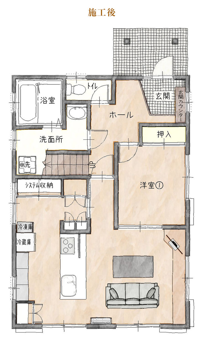
LDK
狭く使いづらかったキッチンを回遊できる動線とたっぷりの収納を備えたフラット対面キッチンへリフォーム。作業スペースを広げ、ごみ箱をキャビネット内に収めて見た目もすっきり。置き家具を洋室へ移動し、既設の背面収納をリビング収納として活用することで空間にゆとりが生まれ、広々としたリビングになりました。
WORKS
Reform Story
Contact Form
お問い合わせ・来店予約
どんな小さなお悩み・ご相談でも構いません!
まずはお気軽にお問合せください。
中部エリア 0120-87-7547
[中部エリア 対応時間] 9:00~17:30
関東エリア 0120-10-7549
[関東エリア 対応時間] 平日 8:30~17:30/土 10:00~17:00 日曜定休日

Show room / Studio /
Office