No.6002
集中できる家の中の居場所 家族で使える造作ワークスペースを実現
Reform Story
リフォーム ストーリー
ワークスペース
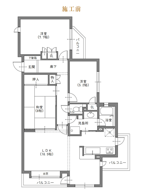
和室を区切り、造作カウンター付きのワークスペースと収納力の高いWICを新設しました。PC作業や家族共有に十分な広さで、暮らしに合わせた使い方が可能です。LDKにはウッドタイルや有孔ボードを取り入れ、機能性と遊び心をプラス。毎日気軽に腰掛けて作業したくなる、ほどよく身近なワークスペースができました。
WORKS
Reform Story
Contact Form
お問い合わせ・来店予約
どんな小さなお悩み・ご相談でも構いません!
まずはお気軽にお問合せください。
中部エリア 0120-87-7547
[中部エリア 対応時間] 9:00~17:30
関東エリア 0120-10-7549
[関東エリア 対応時間] 平日 8:30~17:30/土 10:00~17:00 日曜定休日

Show room / Studio /
Office