Reform Story
リフォーム ストーリー
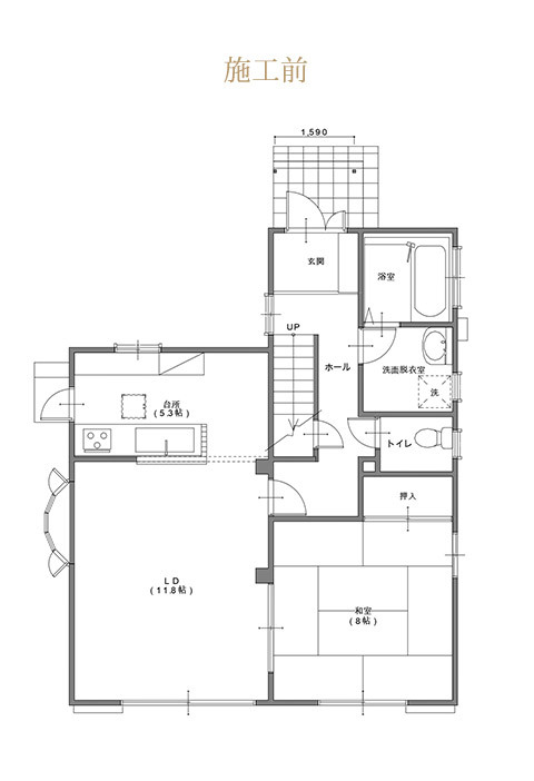
洗面所
老朽化した開き扉の洗面台を、収納しやすい引き出し式へ交換。幅も75㎝から90㎝に広げ、使いやすさと収納力を両立しました。お湯がすぐ出る「即湯水栓」で冬場も快適に、ムダな水も節約。さらに吊戸棚を昇降式にして、奥様がラクに出し入れできるよう工夫しました。
WORKS
Reform Story
Contact Form
お問い合わせ・来店予約
どんな小さなお悩み・ご相談でも構いません!
まずはお気軽にお問合せください。
中部エリア 0120-87-7547
[中部エリア 対応時間] 9:00~17:30
関東エリア 0120-10-7549
[関東エリア 対応時間] 平日 8:30~17:30/土 10:00~17:00 日曜定休日

Show room / Studio /
Office