Reform Story
リフォーム ストーリー
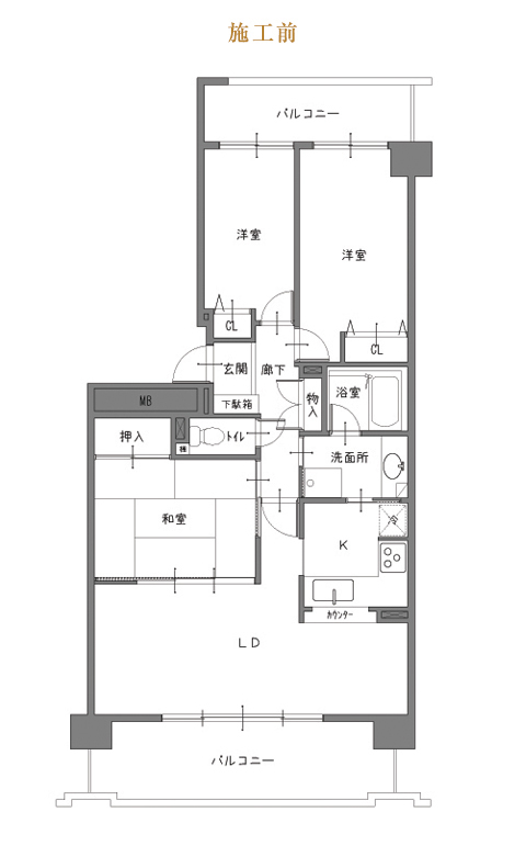
浴室・洗面所
お風呂を広くしたいとのご希望で、1317サイズから1616サイズのユニットバスへリフォームしました。足を伸ばしてゆったり入れる快適な浴室に生まれ変わり、ご家族にも大好評。洗面台もお風呂の雰囲気に合わせて一新し、壁を調整して収納まで美しく収まる仕上がりに。毎日のバスタイムが楽しみになる空間になりました。
WORKS
Reform Story
Contact Form
お問い合わせ・来店予約
どんな小さなお悩み・ご相談でも構いません!
まずはお気軽にお問合せください。
中部エリア 0120-87-7547
[中部エリア 対応時間] 9:00~17:30
関東エリア 0120-10-7549
[関東エリア 対応時間] 平日 8:30~17:30/土 10:00~17:00 日曜定休日

Show room / Studio /
Office