Reform Story
リフォーム ストーリー
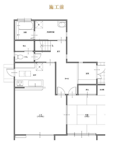
洗面所
「洗面所にもっと収納が欲しい」とのご要望から、洗面台に合わせてオーダー収納棚を造作しました。色やサイズを自由に選べるため、空間にぴったりフィットし、見た目も機能性も大幅にアップ。使いやすくスッキリとした洗面空間に生まれ変わりました。あわせて2階の洗面台も新しく交換しました。
WORKS
Reform Story
Contact Form
お問い合わせ・来店予約
どんな小さなお悩み・ご相談でも構いません!
まずはお気軽にお問合せください。
中部エリア 0120-87-7547
[中部エリア 対応時間] 9:00~17:30
関東エリア 0120-10-7549
[関東エリア 対応時間] 平日 8:30~17:30/土 10:00~17:00 日曜定休日

Show room / Studio /
Office