Reform Story
リフォーム ストーリー
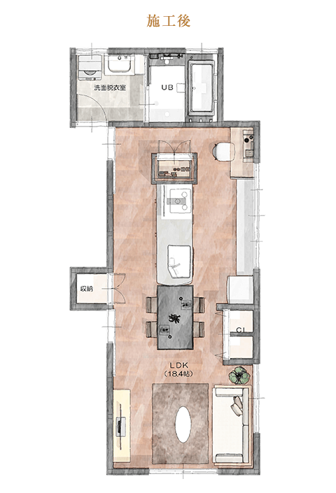
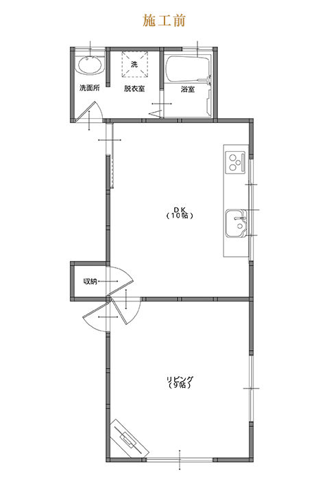
浴室・洗面所
もともと洗面台と脱衣スペースが分かれていた洗面所を一つにまとめ、使い勝手の良い空間にリフォームしました。サイドキャビネットや上部棚を設け、限られたスペースでも収納力をしっかり確保。浴室は1216サイズから1616サイズへ拡張し、ゆったり入浴できる空間へと生まれ変わりました。
WORKS
Reform Story
Contact Form
お問い合わせ・来店予約
どんな小さなお悩み・ご相談でも構いません!
まずはお気軽にお問合せください。
中部エリア 0120-87-7547
[中部エリア 対応時間] 9:00~17:30
関東エリア 0120-10-7549
[関東エリア 対応時間] 平日 8:30~17:30/土 10:00~17:00 日曜定休日

Show room / Studio /
Office