Reform Story
リフォーム ストーリー
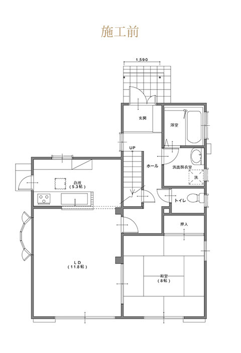
トイレ
掃除がしやすく見た目もすっきりとしたトイレをご希望でした。そこでタンクレストイレへ交換し、給水管を床下から通すことで空間を広く整えました。除菌機能を備えた便器で清潔さを保ち、ボウル型手洗いとキャビネットを組み合わせて収納力とデザイン性を両立。清潔感と使いやすさを兼ね備えたトイレへ生まれ変わりました。
WORKS
Reform Story
Contact Form
お問い合わせ・来店予約
どんな小さなお悩み・ご相談でも構いません!
まずはお気軽にお問合せください。
中部エリア 0120-87-7547
[中部エリア 対応時間] 9:00~17:30
関東エリア 0120-10-7549
[関東エリア 対応時間] 平日 8:30~17:30/土 10:00~17:00 日曜定休日

Show room / Studio /
Office