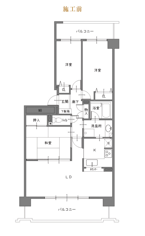
Reform Story
リフォーム ストーリー
トイレ
収納力の高いキャビネット付きトイレで、掃除道具もすっきり片付き、空間全体が広く感じられるように。 内装にはイエローを選び、ビタミンカラーのほどよい華やかさで、清潔感と温もりのある雰囲気を演出しました。毎日使う場所だからこそ、心地よく過ごせるトイレに仕上がりました。
WORKS
Reform Story
Contact Form
お問い合わせ・来店予約
どんな小さなお悩み・ご相談でも構いません!
まずはお気軽にお問合せください。
中部エリア 0120-87-7547
[中部エリア 対応時間] 9:00~17:30
関東エリア 0120-10-7549
[関東エリア 対応時間] 平日 8:30~17:30/土 10:00~17:00 日曜定休日

Show room / Studio /
Office