Reform Story
リフォーム ストーリー
キッチン
手が届きにくかった吊戸棚を昇降式にして、使いやすく快適な収納へ。ワークトップは広く設け、調理や配膳がしやすい動線を確保しました。吊戸棚と垂れ壁をなくしたことで明るく開放的な空間に。水栓はハンズフリー仕様で衛生的に使え、熱や傷に強い天板はお手入れも簡単。リフォーム後は使いやすさが増し、キッチンに立つ時間が楽しくなったそうです。
リビング・ダイニング
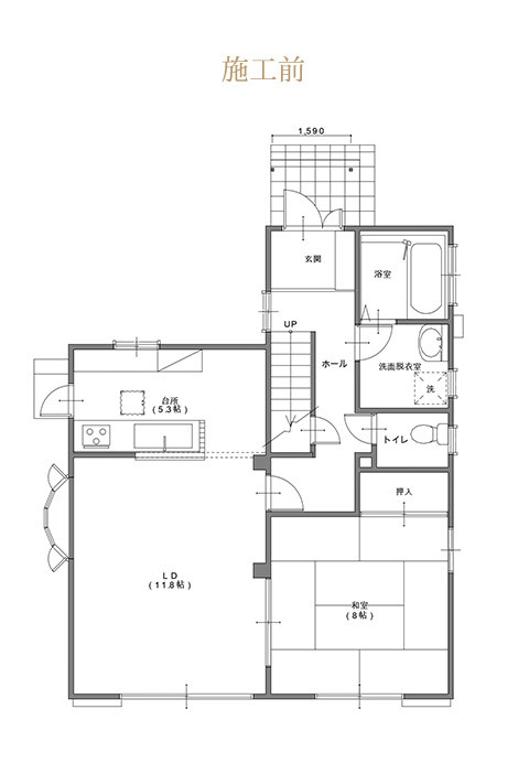
リビングと和室の間仕切りをなくし、ひと続きの広がりを感じる空間に。取り除けなかった柱はデザインの一部として仕上げ、上質な雰囲気を演出しました。和室の一部には大容量のクローゼットを設け、ピアノもすっきり収納可能に。壁一面の収納で家具を置く必要がなく、より広々とした家族の憩いの場となりました。











