Reform Story
リフォーム ストーリー
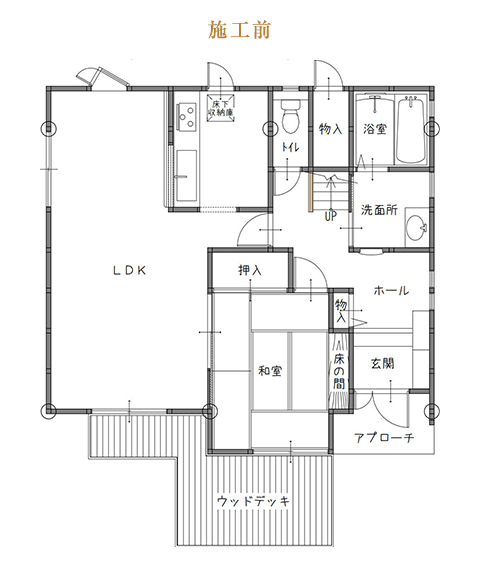
LDK
リビングダイニングはホテルロビーのような落ち着いた空間に仕上げ、ダークトーンの内装と間接照明で大人の雰囲気を演出。キッチンは通路幅1.3mを確保し、収納量を増やしながら使いやすい動線を実現しました。手元を隠せる対面カウンターは軽食スペースとしても活用でき、背面にはガラスタイルを施工して高級感をプラスしています。
WORKS
Reform Story
Contact Form
お問い合わせ・来店予約
どんな小さなお悩み・ご相談でも構いません!
まずはお気軽にお問合せください。
中部エリア 0120-87-7547
[中部エリア 対応時間] 9:00~17:30
関東エリア 0120-10-7549
[関東エリア 対応時間] 平日 8:30~17:30/土 10:00~17:00 日曜定休日

Show room / Studio /
Office