Reform Story
リフォーム ストーリー
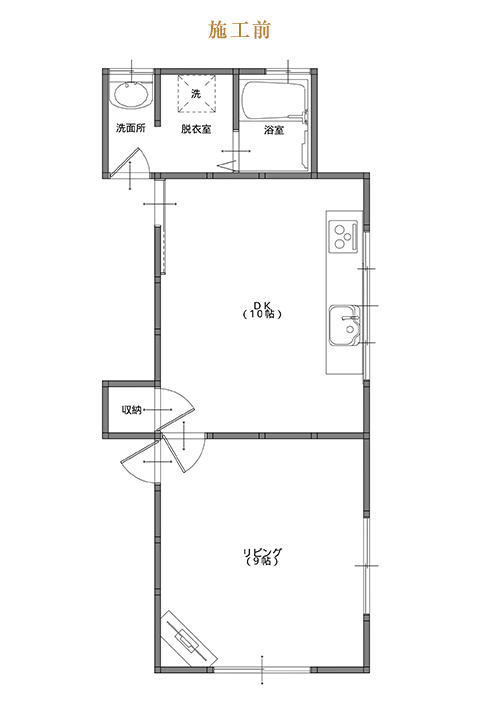
LDK
暑さと孤立感に悩まされていたキッチンを、リビングと一体化して開放的なLDKへ。仕切りをなくして風通しを改善し、キッチンとカップボードの間を1m空けて動線も快適に。収納力もアップし、ご主人様はカウンターで晩酌を楽しみ、お子様も料理を手伝うように。家族が自然と集まる快適な空間が生まれました。
WORKS
Reform Story
Contact Form
お問い合わせ・来店予約
どんな小さなお悩み・ご相談でも構いません!
まずはお気軽にお問合せください。
中部エリア 0120-87-7547
[中部エリア 対応時間] 9:00~17:30
関東エリア 0120-10-7549
[関東エリア 対応時間] 平日 8:30~17:30/土 10:00~17:00 日曜定休日

Show room / Studio /
Office