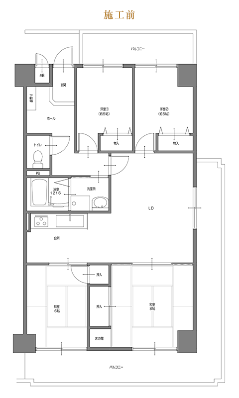
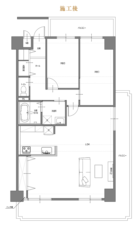
Reform Story
リフォーム ストーリー
リビング・ダイニング
お孫さんがのびのび遊べるLDKに。リビングの一角には在宅ワークに便利なお仕事スペースを設置。ダイニング横には大容量の収納を設け、配線もすっきり収まるよう工夫しています。さらにBluetooth対応の照明で、広い空間でも快適に過ごせる住まいが完成しました。
キッチン
キッチンは開放感のあるシステムキッチンへ。位置を変えると配管の都合があるため造作壁で工夫し、ニッチ収納として活用しました。普段はご夫婦二人で使えるカウンターを備え、お孫さんが来た時には壁内収納式のカウンターを広げ、家族みんなで食事を楽しめます。




