Reform Story
リフォーム ストーリー
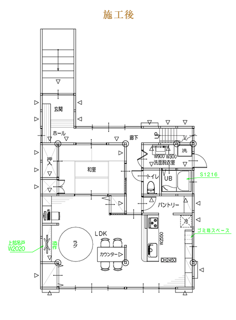
キッチン
収納力抜群の特注カップボードとパントリーを設置し、使いやすさを重視。テレビを見ながら調理できる対面キッチンは、吊戸をなくして開放感を演出しました。窓には外から見えにくいミラーレースを採用し、食洗機やごみ箱収納も完備。さらに間接照明で明るく影が出にくい空間に仕上げています。
リビング・ダイニング
和室を洋室に変えてキッチンとつなげ、広々としたLDに。抜けない筋交いは腰壁とクロスで目立たないよう工夫し、扉付き収納も2か所に設置しました。床はペット対応のフローリングを採用し、ペットの毛が目立ちにくい色を選択。さらに配線も吊戸に収納して、すっきりとした空間になりました。






