Reform Story
リフォーム ストーリー
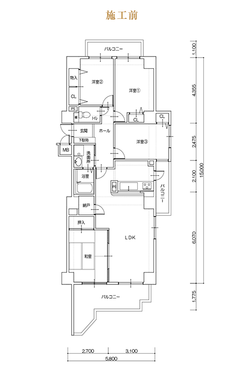
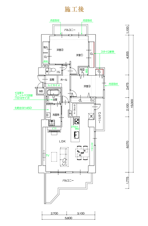
洗面所・浴室
梁の位置に合わせて、幅1600mmのゆったり使える洗面台を設置。天井が低い梁下スペースには洗濯機を配置し、限られた空間を無駄なく活用しました。ご主人のこだわりで選んだタイル床のユニットバスは、高級感と清掃性を兼ね備えた仕上がりになりました。
WORKS
Reform Story
Contact Form
お問い合わせ・来店予約
どんな小さなお悩み・ご相談でも構いません!
まずはお気軽にお問合せください。
中部エリア 0120-87-7547
[中部エリア 対応時間] 9:00~17:30
関東エリア 0120-10-7549
[関東エリア 対応時間] 平日 8:30~17:30/土 10:00~17:00 日曜定休日

Show room / Studio /
Office