Reform Story
リフォーム ストーリー
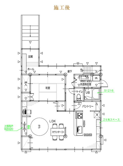
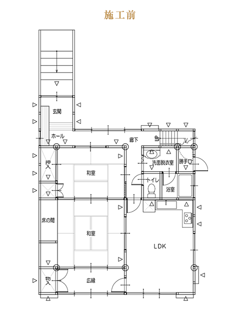
洗面所
狭くて収納が少なかった洗面所を、リフォームによって使いやすく改善。洗濯機の配置や床形状を見直し、奥行きの浅い洗面台や収納棚を設置して空間を広く活用。洗面台の幅も広げ、収納棚を追加。洗濯機上には洗剤置きに便利なニッチも設けました。
WORKS
Reform Story
Contact Form
お問い合わせ・来店予約
どんな小さなお悩み・ご相談でも構いません!
まずはお気軽にお問合せください。
中部エリア 0120-87-7547
[中部エリア 対応時間] 9:00~17:30
関東エリア 0120-10-7549
[関東エリア 対応時間] 平日 8:30~17:30/土 10:00~17:00 日曜定休日

Show room / Studio /
Office