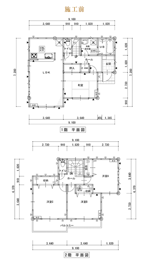
Reform Story
リフォーム ストーリー
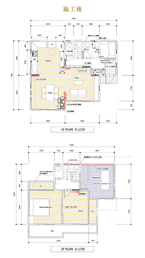
LDK
たくさんの来客をお迎えできる、ゆったりとしたリビングへとリフォーム。自然光が差し込む開放感のある空間には、猫ちゃん専用のキャットタワーや水飲み場も造作。滑りにくく床暖房にも対応した無垢材の床で、快適に過ごせます。壁には消臭効果のあるエコカラットを採用し、人にもペットにも心地よい空間に仕上がりました。
キッチン
料理教室も開ける、広さと収納力を兼ね備えたキッチンにリフォーム。壁付けにして空間にゆとりを持たせ、必要な時には作業台を出せる工夫も。収納もたっぷり設け、料理教室で使う道具もすっきり収まります。アクセントに選んだモザイクタイルや、細やかな設備の配慮で、使いやすさとデザイン性を両立したキッチンが完成しました。






