Reform Story
リフォーム ストーリー
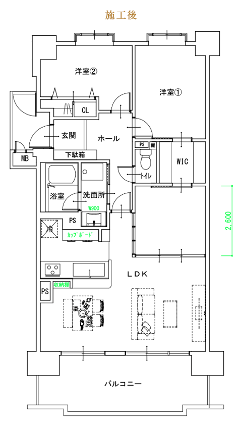
LDK
黒を基調にしたシンプルモダンな空間へリノベーション。壁掛けテレビとフロート式テレビボードは間接照明でやさしく照らされ、落ち着きある雰囲気を演出。隣のプレイルームは三連引戸で仕切れ、来客時もさっとおもちゃを隠せる設計。室内窓で光も届き、明るく開放的です。
キッチン
キッチンは、モノトーンのガラスモザイクタイルがアクセント。家電や道具も黒で揃えたことで、統一感のあるスタイリッシュな空間に。見た目だけでなく、使いやすさにもこだわったすっきりとしたキッチンが完成しました。










