物件情報
Sale article information
- TOP >
- 物件情報
マンション
末広コーポラス
物件価格
490万円(税込)
- Address
- 愛知県一宮市末広2
- Root
- 名鉄名古屋本線「名鉄一宮」歩15分、JR東海道本線「尾張一宮」歩15分、名鉄尾西線「観音寺」歩12分
◇一宮駅まで徒歩15分
◇小学校まで徒歩4分
◇内覧時リフォームプランお伝えします!
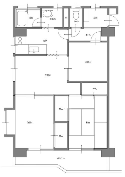
~Room~
・トランクルームあり
・居室内リノベ向きでで自由に間取り変更可能です
・対面キッチンにも変更可♪
・角部屋のため陽当たり通風良好
~Environment~
・徒歩10分圏内に幼稚園・保育園が2つあり子育てに優しい立地
・スーパーも3つあり好みのお店でのお買い物も楽しめます
・小学校まで徒歩4分でお子様の通学も安心♪
~Company~
弊社は愛知県に6店舗かまえております!
リノベーションが出来る弊社で理想の暮らしをで叶えてみませんか?
ローンシミュレーション
物件価格
490万円
月額返済例
月々1.3万円
上記価格には、現場諸経費および消費税は含まれません。別途頂戴いたします。詳しくはスタッフまでお問い合わせください。












